Bridge Design

(2017 – 2021)

During this period I set about designing bridges. Specifically highway bridges. It felt as if I was starting from zero again. Initially I was given a small part of an integral abutment bridge to design, and within a month I was given the whole bridge. I knew as I was starting out that this type of structure had been used in many places around the world and therefore I looked for existing drawings to reference. The existing drawings gave the vision. I then decided to read all the design codes I could find and read an integral bridge design book. Taking notes along the way of everything I may need to do. Questioning every word and detail on the drawings as everything has a purpose. 

Just a quick aside…This deep dive is something I do when starting from zero, casting the net wide or spreading yourself thinly. Then slowly reeling in until you have a clear vision for what to do. Discarding the knowledge that doesn’t seem useful. It’s overwhelming at first, because of how deep the rabbit hole is for almost every industry, and how do you know what is relevant and what isn’t? In time you’ll slowly start to understand, and applying a first principles mindset allows you to figure out what you should keep and what you should discard. It helps to surround yourself with people who are good at the topic you’re trying to learn. That uncomfortable feeling of not knowing what you are doing is necessary. It means you are growing, and if that feeling alludes you, it means you are stagnating.

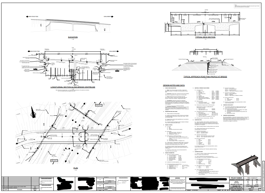
Within the first year I had completed the design of the single span integral abutment highway bridge. Including working with some draftsman to create 2D construction drawings. What’s interesting about this kind of engineering is that you rely heavily on the experience of past builds. There’s no way to cheaply test the designs and quickly iterate through failures. Structural collapses have big consequences and may cause harm to others. It’s for this reason that innovation within this space is very slow. But once the structures are built there’s a joy in observing all the parts you spent countless hours fixating on, marveling in this beast that you have birthed. Standing under a bridge I designed, and watching vehicles traverse, gives me a deep sense of connection to the universe. Here is the physical proof that the science that humans have discovered actually works and how incredible we are as a species.

Over this period I completed the detailed design of 3 highway bridges (the longest being 150m), 1 major culvert, a gabion retaining wall, some rehabilitation projects, inspection of hundreds of culverts. It was also within this period where I first started to get involved in project management and project finances.

Here are the lessons learned from the period:

  • Engineers use Microsoft Excel for everything. Planning and design calculations;
  • Engineers are generally bad at keeping calculations neatly stored and communicated for future use or iteration. This problem is heightened when engineers leave the company half way through a design and you essentially have to start from scratch with the designs;
  • Design projects take a long time, and even longer to build, which means it takes time to have big lessons learned. As I’ve said somewhere else on this website that there is much to be learned about trying to actually build the thing you have designed; 
  • Lump sum based projects make teams work harder compared to time-and-cost based projects. Too many time-and-cost based projects will create a lazy culture within the business;
  • When humans give deadline dates or task durations, they typically take up the entire time suggested. Meaning that in most cases you can decrease their time estimates and the job will still get done. This is what is referred to as “Parkinson’s law”; 
  • The most productive people, who take action when there is uncertainty, are always the busiest. The ”go-to” people;
  • Engineering consultancies are people-based businesses. Their assets are their people. When the people leave, they take with them the know how and expertise and the company’s service offering changes;
  • You will have sleepless nights when you’re under time pressure to make decisions about challenging calculations. Especially knowing that the collapse of a structure can result in the loss of life. As such, civil engineers are risk averse;
  • Innovation in the civil engineering sector is slow; 
  • Building your business around one major client is risky; 
  • Project managers with engineering backgrounds are preferred over project managers without; 
  • You can imagine dear reader that construction drawings were once hand drawn. Vast rooms of people drawing out plans. That was superseded by drawing software such as AutoCad. Today, drawings are created from 3D models and converted into 2D for drawing production. The creation of drawings involves an engineer and a drafter pair. However, I’ve observed that availability of talented draftspersons is scarce and that a frustrating part of an engineer’s day is the constant backwards and forwards between you and the drafter. It’s more ideal if an engineer uses sophisticated software available to do both the design and drawing creation; 
  • The checking of reinforcing bending schedules is frustrating. Therefore, you should prioritize 3D rebar modelling and automated schedule creation; 
  • Its useful having a catalogue of complete sets of drawings for completed structures that is easily accessible to your team. You would think that this is standard for these companies but I can assure you it is not. The same goes for standardized details that can be used from project to project; 
  • Enforcing set folder structures within project folders is crucial. Large infrastructure projects take a long time and people come and go regularly. Therefore there will be huge time savings if your team can easily locate project data; 
  • Standardized naming of files and version control is important; 
  • Design codes are generally maintained and controlled by a few companies. Making design codes hidden behind paywalls. This is similar to scientific journals. This makes it difficult to find information you’re looking for if your company doesn’t keep their subscriptions up to date; 
  • When inheriting “almost complete” design work from someone else, don’t just assume they did a good job. Relook at their work from scratch; 
  • Before trying to do the structural design of a bridge, it’s a good idea to have the entire structure thought through. What I mean by this is that the finer details usually mess you up at the end. Thinking about everything that the bridge should have in its finished state helps guide spatial arrangement and keeps you mindful of the details you need to design;
  • A good engineer thinks about all parts of a structure that is needed, even if it’s not within their design discipline; 
  • Engineers should put emphasis on making their calculation outputs understandable to aid in checking and error correction. Don’t just assume that because you understand what you’re looking at, others will as well. The same goes with spreadsheets, if you need a tutorial to understand your UI, it’s a shit UI; 
  • Much can be learned with travelling to site to see where the structures will be built to understand constraints; 
  • Double or triple checking horizontal and vertical clearances is important. In fact you should keep evidence of this check. Ideally checked by the designer of the structure and not a draftsperson; 
  • Be openly curious about every aspect of the structure. Even if you’re not designing everything. Observe other structures in society.
Nicholas Tickle - Bridge design 1
Nicholas Tickle - Bridge design 2
Nicholas Tickle - Bridge design 3
Nicholas Tickle - Bridge design 5